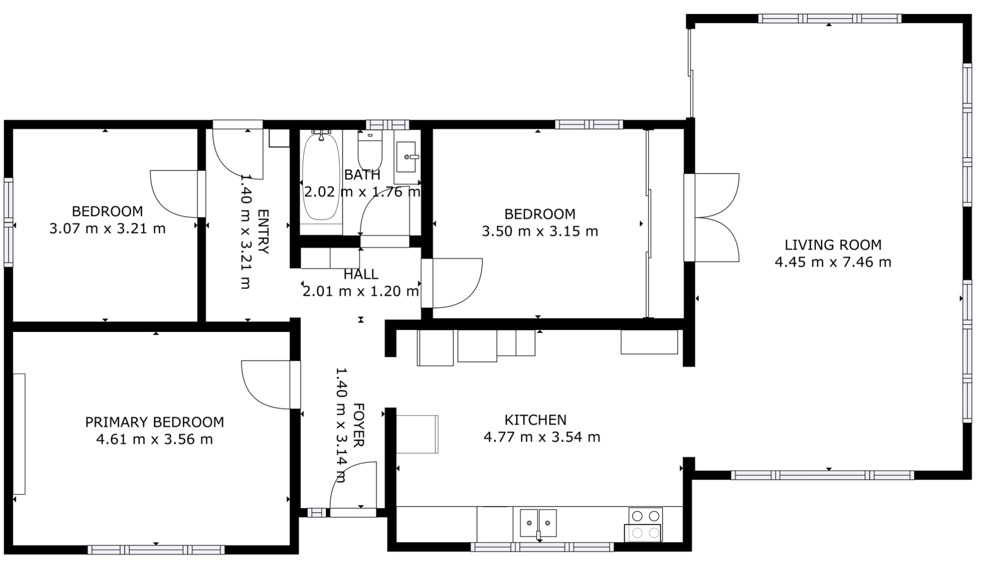
50 Ashbolt Crescent, Lutana
- 3 Bed
- 1 Bath
- 1 Car
50 Ashbolt Crescent, Lutana
- 3 Bed
- 1 Bath
- 1 Car
Leased
$580 per week
Spacious. Convenient. Water Views
THE TENANCY |
• Rent: $580.00 per week
• Lease term: 12 Months
• Available: Late November
• Pets: Upon Application
THE PROPERTY |
• Spacious living area
• 3 Bedrooms
• Light and bright kitchen, with dishwasher
• Reverse cycle heating/cooling
• Separate laundry
• Undercover outdoor area
• Large back yard
• Off street parking
• Water views
• 10 minutes drive from the CBD















