22 Corranga Dr, Chigwell
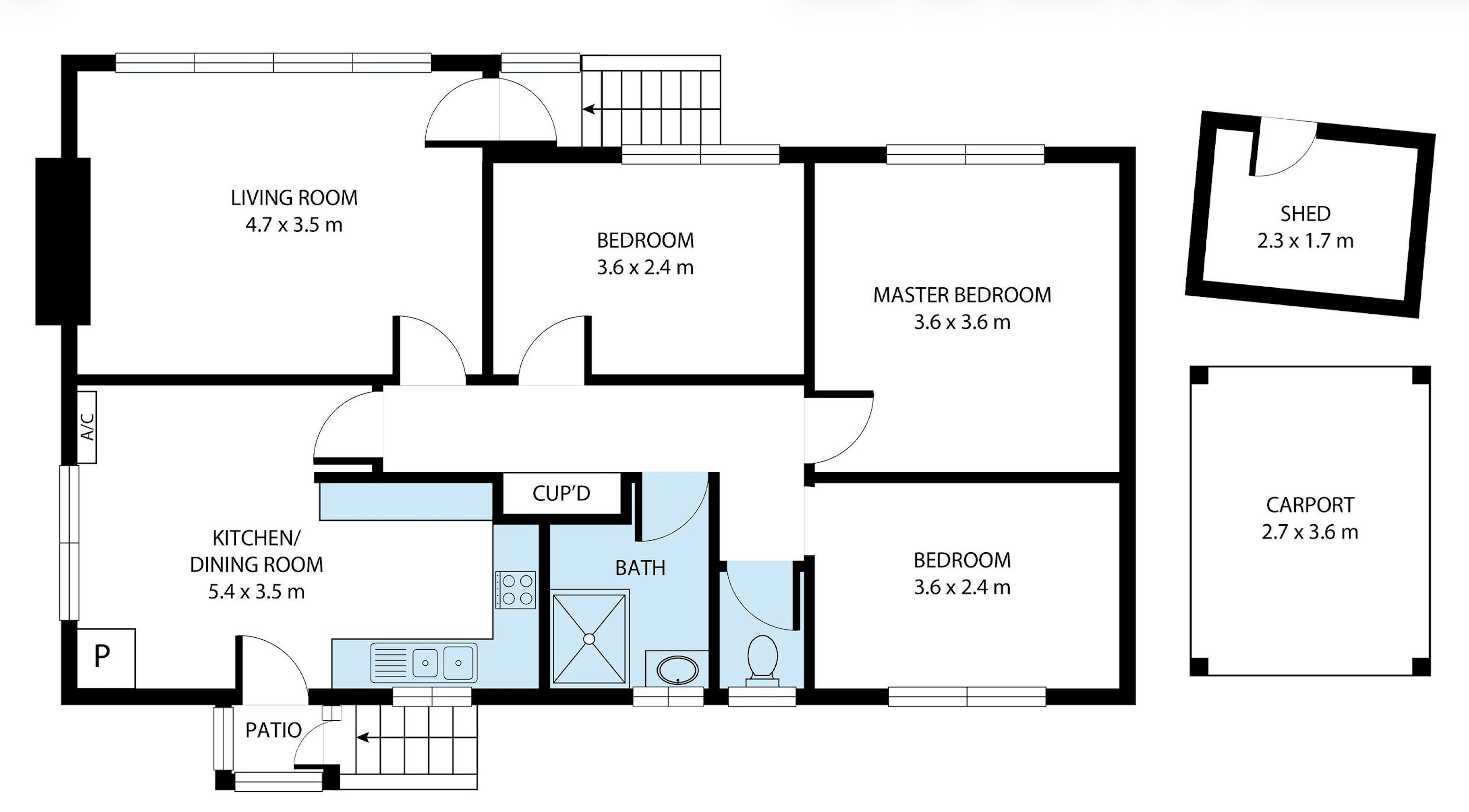
- 3 Bed
- 1 Bath
- 4 Car
22 Corranga Dr, Chigwell
- 3 Bed
- 1 Bath
- 4 Car
Leased
$560
Renovated. Charming. Location.
THE TENANCY |
• Rent: $560 per week
• Lease term: 12 months
• Available: Late December
THE PROPERTY |
• Beautifully renovated with new kitchen, bathroom and powder room
• New plaster, wiring, lighting, flooring, blinds & curtains throughout
• Spacious lounge room with views
• Solar panels for energy efficiency
• Reverse cycle heating/cooling
• Large, fenced backyard with garden shed
• Carport for one vehicle and additional off street parking for multiple vehicles
• Conveniently located near shops, schools, services & public transport






















